Mieszkanie na sprzedaż Bydgoszcz, Szwederowo

3 pokoje
82.00 m²
7 073,17 zł/m2
2 piętro
PIN-MS-131
Oblicz ratę kredytu

580 000 zł

Mieszkanie na sprzedaż
Nowa oferta

Szczegóły oferty

Symbol oferty PIN-MS-131
Powierzchnia 82,00 m²
Liczba pokoi 3
Rodzaj budynku blok
Technologia budowlana cegła
Standard
Opłaty w czynszu wywóz śmieci, woda ciepła, ogrzewanie, fundusz remontowy, Części wspólne, administracja
Opłaty wg liczników prąd, gaz
Piętro 2
Liczba pięter w budynku 4
Piwnica [m2] 4,62 m²
Stan lokalu do odnowienia
Mies. czynsz admin. 1 100 PLN
Czynsz zimowy 1 100 PLN
Okna PCV
Instalacje dobre
Balkon loggia
Liczba balkonów 1
Rok budowy 1993
Gaz jest
Woda ciepła - miejska
Dojazd ASFALTOWA
Otoczenie bloki
Ogrzewanie centralne
Odległość do komunikacji publicznej [m] 80 m
Odl. do sklepu [m] 100 m
Odl. do szkoły [m] 300 m
Odl. do przedszkola [m] 150 m
Usytuowanie dwustronne
Rolety antywłamaniowe tak
Anna Polishchuk

Anna Polishchuk

Doradca Ds. Nieruchomości

Napisz wiadomość 13 Ofert

Opis nieruchomości

Mieszkanie 82 m² | duża loggia | 3 pokoje | 2 piętro | Szwederowo

Na sprzedaż mieszkanie w bloku z 1993 r. z cegły, położone na 2 z 4 pięter zadbanego budynku zarządzanego przez spółdzielnię. Nieruchomość znajduje się na osiedlu Szwederowo.

Duże i jasne mieszkanie składa się z dużego salonu z wyjściem na balkon typu loggia, kuchni oraz pokoju przechodniego i jednego pokoju niezależnego, dużej łazienki i przedpokoju. Układ mieszkania można zmienić, a taki metraż daje wiele możliwości aranżacyjnych.

Bezpieczne i dobrze skomunikowane osiedle, z licznymi punktami usługowymi. Łatwy dojazd do centrum, w pobliżu centrum handlowe, szkoły i przedszkole.
Przy bloku dużo miejsc postojowych, zielone otoczenie i cicha ulica.

Cena do negocjacji


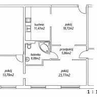
UKŁAD MIESZKANIA:

  • salon z wyjściem na balkon 18,72  + balkon
  • kuchnia osobna 11,47 
  • pokój przejściowy 23,77 m² 
  • pokój nie przejściowy 13,70 
  • łazienka 8,08   
  • przedpokój  5,86 
  • piwnica 4,62 

INFORMACJE DODATKOWE

  • czynsz 1100 zł / 1 osoba (ogrzewanie, ciepła woda, śmieci, fundusz remontowy, części wspólne)

  • okna PCV – bardzo dobry stan, rolety antywłamaniowe zewnętrzne

  • instalacje w dobrym stanie, elektryczne miedziane

  • podłogi: kafelki, panele

  • wysokość do sufitu 2,70 m

  • pełna własność – księga wieczysta

    mieszkanie posiada certyfikat charakterystyki energetycznej.


NAJWAŻNIEJSZE ATUTY

  • duże mieszkanie – wiele możliwości aranżacyjnych, można zamieszkać od razu, mieszkanie zadbane

  • środkowe i dwustronne – 2 piętro, dużo słońca, brak zabudowy „okna w okna”

  • lokalizacja – Szwederowo, jedna z bardziej pożądanych lokalizacji pod względem wygody

  • instalacje w dobrym stanie – brak konieczności wymiany

  • duży balkon typu loggia – idealne miejsce na wypoczynek

  • 2 piętro – brak konieczności pokonywania wielu schodów, szerokie klatki, na klatce tylko 2 mieszkania

  • duża piwnica ok. 5 m² – daje więcej miejsca do przechowywania
     

  • Nieruchomość sprawdzona pod kątem prawnym – bezpieczna transakcja.


Prowizja obowiązuje wyłącznie w przypadku zakupu lub wynajmu nieruchomości.
Prezentacje i doradztwo są całkowicie bezpłatne.
Jeśli ta oferta nie spełnia Państwa oczekiwań, proszę o kontakt — znajdę propozycję dopasowaną do potrzeb.

Jak jeszcze możemy Ci pomóc?

  • Darmowe konsultacje kredytowe

  • Projektowanie wnętrz

  • Budowa domów

Zapraszam do zapoznania się z pozostałymi ofertami.

 Aby uzyskać więcej informacji lub umówić się na prezentację:
Opiekun oferty.

537 994 336 – Anna Polishchuk
PROINVEST NIERUCHOMOŚCI

Opis oferty zawarty na stronie internetowej sporządzany jest na podstawie oględzin nieruchomości oraz informacji uzyskanych od właściciela, może podlegać aktualizacji i nie stanowi oferty określonej w art. 66 i następnych Kodeksu cywilnego.

 

Kalkulatory

Kalkulator kredytowy

Wysokość raty

PLN
%

Kalkulator kosztów

Podatek od czynności cywilno-prawnych

Taksa notarialna
(opłata notarialna)

Wniosek o wpis do KW

VAT od prowizji
agencji nieruchomości

VAT od taksy notarialnej
(opłaty notarialnej)

Prowizja agencji nieruchomości

Wypisy aktu notarialnego

Razem

Uwaga: mogą wystąpić dodatkowe opłaty za założenie księgi wieczystej oraz ustanowienie hipoteki.

PLN
PLN
PLN
PLN
PLN
PLN
%
PLN

Doradca Ds. Nieruchomości

Proszę wprowadzić poprawne imię i nazwisko
Proszę wprowadzić poprawny numer telefonu
Proszę wprowadzić poprawny adres e-mail
Proszę zaznaczyć wymagane zgody
Rozwiąż równanie:
27 4
Niepoprawny wynik