Mieszkanie na sprzedaż Bydgoszcz, Śródmieście

3 pokoje
113.73 m²
7 825,55 zł/m2
parter
PIN-MS-148
Oblicz ratę kredytu

890 000 zł

Mieszkanie na sprzedaż
Nowa oferta

Szczegóły oferty

Symbol oferty PIN-MS-148
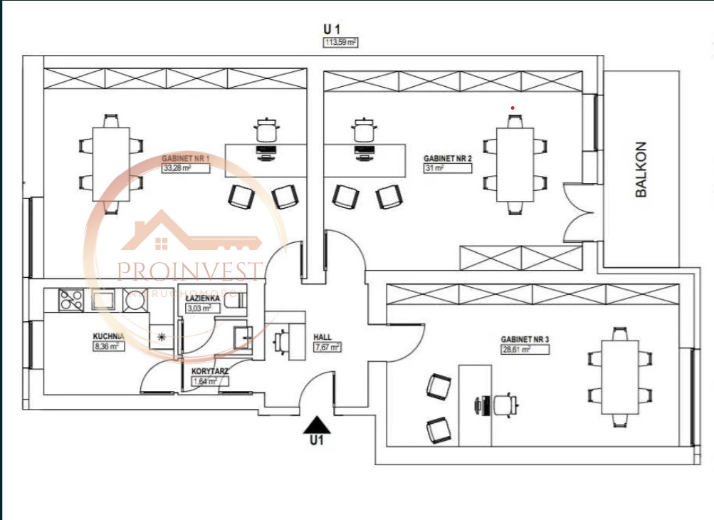
Powierzchnia 113,73 m²
Powierzchnia użytkowa [m2] 113,73 m²
Liczba pokoi 3
Rodzaj budynku kamienica
Piętro parter
Stan lokalu do generalnego remontu
Balkon jest
Umeblowanie brak
Borowiecka Anna

Borowiecka Anna

Doradca Ds. Nieruchomości

Napisz wiadomość 28 Ofert

Opis nieruchomości

Na sprzedaż: przestronny lokal 113,73 m² – centrum Bydgoszczy (Śródmieście)

Na sprzedaż oferujemy lokal o powierzchni 113,73 m², położony na wysokim parterze w odrestaurowywanej kamienicy w prestiżowej części Śródmieścia Bydgoszczy.

Podstawowe informacje:

  • Powierzchnia: 113,73 m²

  • Liczba pomieszczeń: 3

  • Poziom: wysoki parter

  • Balkon: tak

  • Rynek: wtórny

  • Stan: do kapitalnego remontu

  • Cena za m²: 7 825,55 zł

Opis nieruchomości:
Lokal znajduje się w klimatycznej kamienicy, która przechodzi obecnie prace remontowe, co znacząco podnosi wartość inwestycyjną nieruchomości. Duże możliwości aranżacyjne pozwalają na dostosowanie przestrzeni zarówno pod cele mieszkalne, jak i komercyjne.

Układ lokalu daje możliwość podziału na 2 lub nawet 3 mniejsze jednostki, co czyni ofertę szczególnie atrakcyjną dla inwestorów.

Atuty nieruchomości:

  • lokalizacja w ścisłym centrum miasta

  • wysoki parter – dogodny dostęp

  • balkon

  • możliwość adaptacji na apartament, biuro, kancelarię lub gabinet

  • potencjał inwestycyjny (podział na mniejsze lokale)

  • kamienica w trakcie rewitalizacji

Lokalizacja:
Nieruchomość położona w dzielnicy Śródmieście – w pobliżu pełna infrastruktura miejska, komunikacja, punkty usługowe, restauracje oraz instytucje publiczne.

Dla kogo:
Oferta idealna dla inwestorów, firm poszukujących reprezentacyjnej przestrzeni w centrum miasta lub osób chcących stworzyć unikatowy apartament w kamienicy.

 

Anna Borowiecka | Proinvest Nieruchomości
535 124 374
Prowizja wyłącznie przy zakupie lub wynajmie.
Prezentacje i doradztwo – bezpłatne.

Lokalizacja nieruchomości

Kalkulatory

Kalkulator kredytowy

Wysokość raty

PLN
%

Kalkulator kosztów

Podatek od czynności cywilno-prawnych

Taksa notarialna
(opłata notarialna)

Wniosek o wpis do KW

VAT od prowizji
agencji nieruchomości

VAT od taksy notarialnej
(opłaty notarialnej)

Prowizja agencji nieruchomości

Wypisy aktu notarialnego

Razem

Uwaga: mogą wystąpić dodatkowe opłaty za założenie księgi wieczystej oraz ustanowienie hipoteki.

PLN
PLN
PLN
PLN
PLN
PLN
%
PLN

Doradca Ds. Nieruchomości

Proszę wprowadzić poprawne imię i nazwisko
Proszę wprowadzić poprawny numer telefonu
Proszę wprowadzić poprawny adres e-mail
Proszę zaznaczyć wymagane zgody
Rozwiąż równanie:
29 7
Niepoprawny wynik